Road sectional top view details model
Description
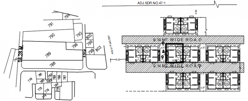
Road sectional top view plan detail. here there is top view road plan structure detail with measurements and directions in auto cad 2d format
Uploaded by:
Eiz
Luna
Road sectional top view plan detail. here there is top view road plan structure detail with measurements and directions in auto cad 2d format
Uploaded by:
Luna