2d CAD drawings details of church building layout plan dwg file
Description
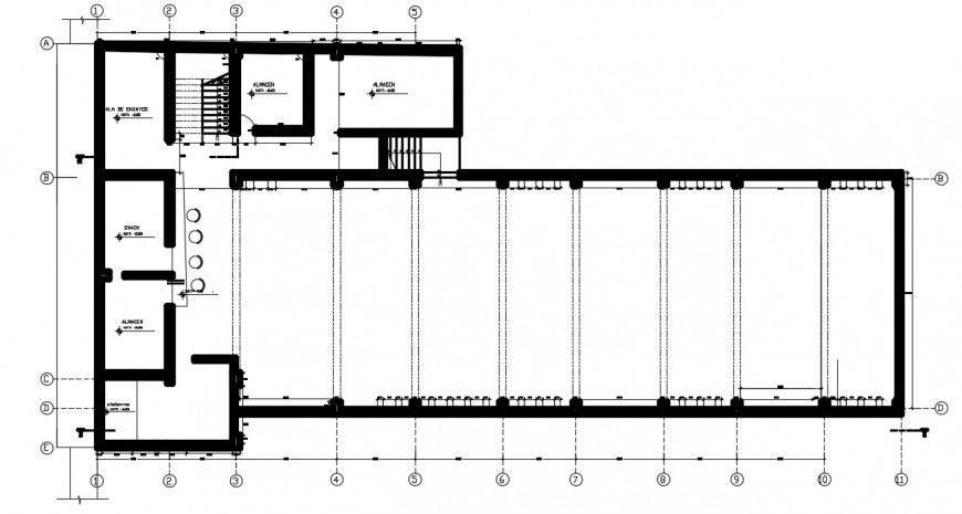
2d CAD drawings details of church building layout plan dwg file that shows work plan drawings details of building along with floor level dteials and door window blocks details. Staircase details and dimension hidden line dteials also included in drawings.
Uploaded by:
Eiz
Luna

