RCC Column and footing structure drawings dwg file
Description
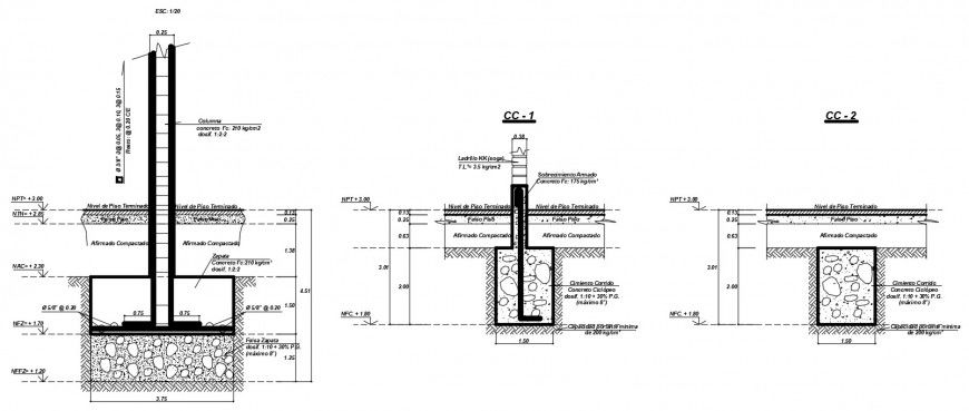
RCC Column and footing structure drawings dwg file that shows reinforcement details in tension and compression zone along with main and distribution hook up and bent up bars dteials. Column plan and foundation footing detials also shown in drawings. The structure is a reinforced concrete cement (RCC) structure.
Uploaded by:
Eiz
Luna

