2d drawings details of housing bungalow plan elevation section dwg file
Description
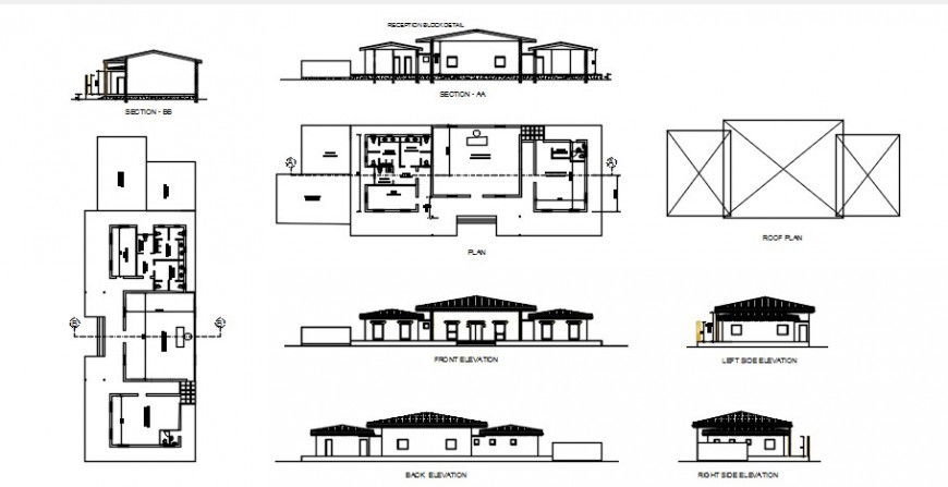
2d drawings details of housing bungalow plan elevation section dwg file that shows work plan drawings details of bungalow along with floor level dteials and house different sides of elevation and sectional details along with roof plan dteials also included in drawings.
Uploaded by:
Eiz
Luna
