2 d cad drawing of apartment exterior Auto Cad software
Description
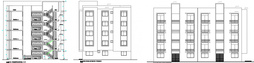
2d cad drawing of apartment exterior autocad software detailed with windows and staircase and escalator seen in the drawing with elevation seen with toilet area ventilation with marked dimension and car parking area and doors seen in the drawing.
Uploaded by:
Eiz
Luna

