2 d cad drawing of kitchen furniture Auto Cad software
Description
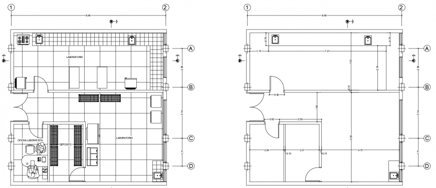
2d cad drawing of kitchen furniture autocad software detailed with wall tiles and wash basin area and window panels seen in the drawing with marked in alphabets and marked dimensions.
Uploaded by:
Eiz
Luna

