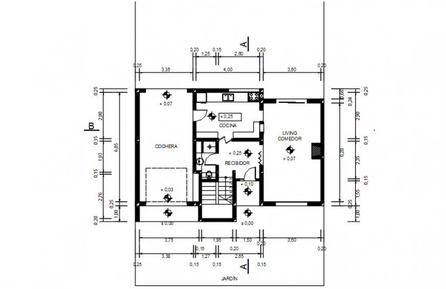
Housing project cad file of ground floor plan
Description
Housing project cad file of ground floor plan showing all the required details including area specification with furniture layout, room size, door-window openings and circulation space with material description by hatch, required dimensions with surrounding landscape area, etc.
Uploaded by:
Eiz
Luna

