2 d cad drawing of furniture shop Auto Cad software
Description
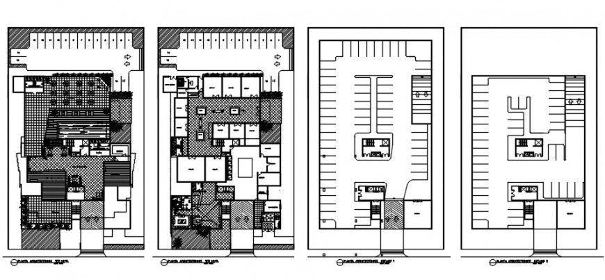
2d cad drawing of furniture shop autocad software detailed with various furnished and valuable dining area with seprate reception area and toilet area and store area and huge space for wlk in with window shopping of dining table sofa and other furniture items.
Uploaded by:
Eiz
Luna

