2 d cad drawing office house Auto Cad software
Description
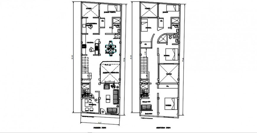
2d cad drawing office house autocad software detailed with living room and office room and toilet area and dining area with kitchen area and study room and one bedroom with toilet area and second floor with four bedroom with two single bed and two double bed bedroom.
File Type:
DWG
File Size:
365 KB
Category::
Interior Design
Sub Category::
Modern Office Interior Design
type:
Gold
Uploaded by:
Eiz
Luna
