2 d cad drawing of building floor elevation Auto CAD software
Description
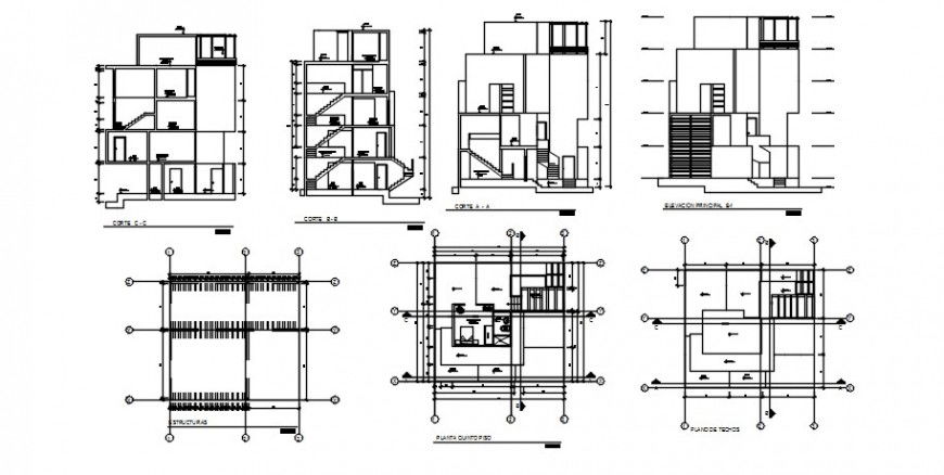
2d cad drawing of bulding floor elevation autocad software details with staircase shown in all drawings and bedroom plan with doors and windows anf floor terrace tank and staircase seein in front view.
Uploaded by:
Eiz
Luna

