Building construction project detail autocad file
Description
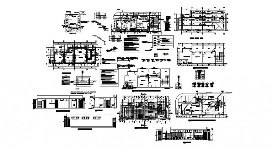
GENERAL TECHNICAL SPECIFICATIONS
1.-The conductors shall be unipolar wire, electrolytic copper, with thermo-plastic insulation of type TW for 600 volts in incoming circuits and type TW in the interior distribution of the INDECO, O PIRELLI brands, the conductors of minimum caliber to be used in lighting and Power socket will be No. 14.
2.- Pipes will be made of polyvinyl chloride of the PVC-SAP heavy standard type in connections and up to the distribution boards, the diameters of the tubes are indicated in the drawings
3.- The Board will be used to build a special factory cabinet, with automatic thermo-magnetic interrupters of the NO-FUSE type.
The dimensions of the cabinet for the board will be given in the house suppliers
4.- The Outlets and Switches will be built-in, similar to the Ticino of the series
LIVING OR MAGIC with aluminum plate, as indicated by the owner
5.- In the circuits of Telephone and cable TV will be with wire guide No. 16 in all the
conduits this same specification will be valid in intercom circuits if not installed by the constructor
6, - The cables will be identified according to the following colors:
- Earth Cable = Yellow
- Neutral Cable = White
- Cable for Phases: R = Red, S = Black, T = Green
7.- The boxes will be of galvanized iron of the heavy type, paint with varnish or anticorrosive before wiring
To fix the boxes do not use any mortar based on plaster
The phase boxes have a blind cover, secured with a "STOWBOLT" screw
8.- In lighting fixtures, the cables will be THHW
9.- To join the pipes to the boxes, use PVC connectors
10.- In the lighting lines or electrical outlets, the number of rays indicates the number of conductors passing through the pipes
File Type:
DWG
File Size:
682 KB
Category::
Construction
Sub Category::
Construction Detail Drawings
type:
Gold
Uploaded by:
Eiz
Luna

