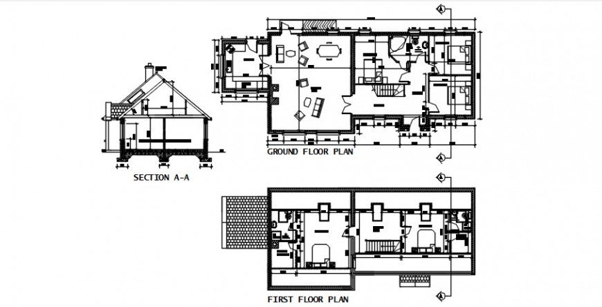
2d CAD section and centerline plan details of house autocad file
Description
2d CAD section and centerline plan details of house autocad file that shows the floor plan of the house along with room dteials of drawings room bedroom kitchen and dining area with sanitary toilet and bathroom details. Section detaisl of the house along with furniture layout details in the house also provided in drawings.
Uploaded by:
Eiz
Luna
