Floor plan drawings details of college building units dwg autocad file
Description
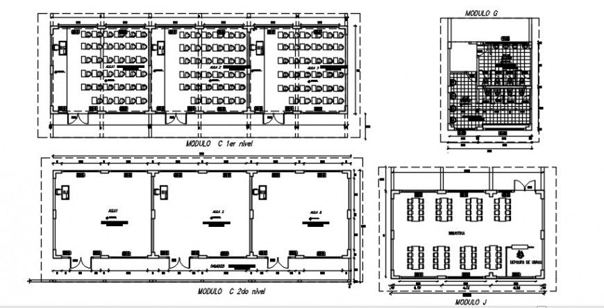
Floor plan drawings details of college building units dwg autocad file that shows along with furniture layout dteials in building and dimension hidden line dteials. DOor window details and sanitary toilet area details also included in drawings.
Uploaded by:
Eiz
Luna

