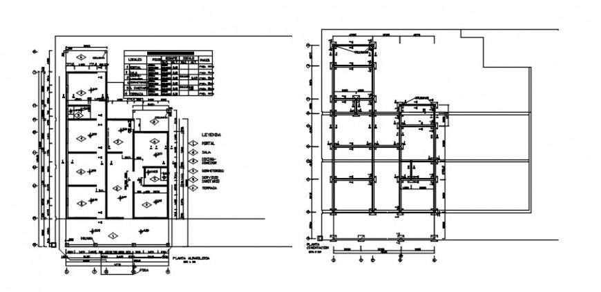
Foundation plan and structural plan details dwg autocad file
Description
Foundation plan and structural plan details dwg file that shows footing foundation plan dteials along with dimension details and specification legends details also included in drawings.
Uploaded by:
Eiz
Luna

