Architecture layout plan of staff residence cad file
Description
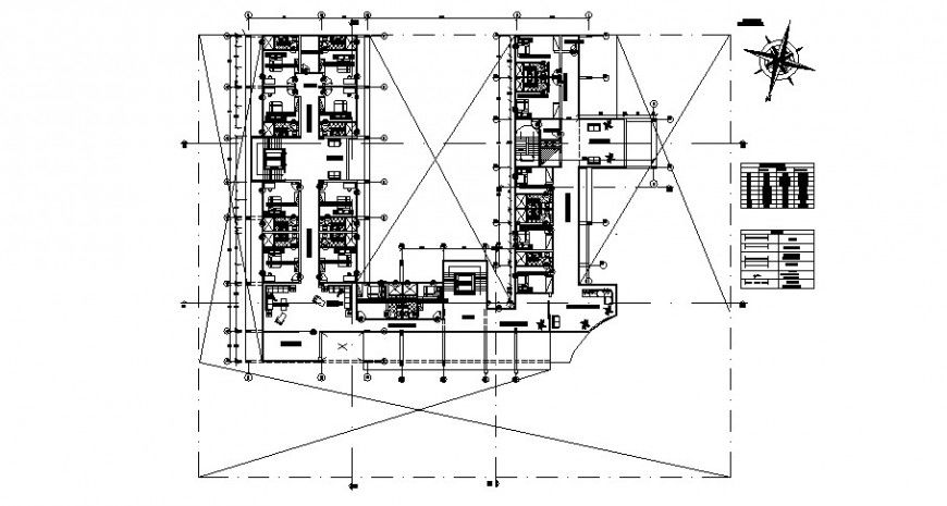
find here the architecture layout plan includes bedrooms, kitchen design, toilet, staff room, the living area along with all furniture detail and dimension description detail, download in free feature of AutoCAD software file.
Uploaded by:
Eiz
Luna

