2d CAD sectional drawings details of kitchen autocad file
Description
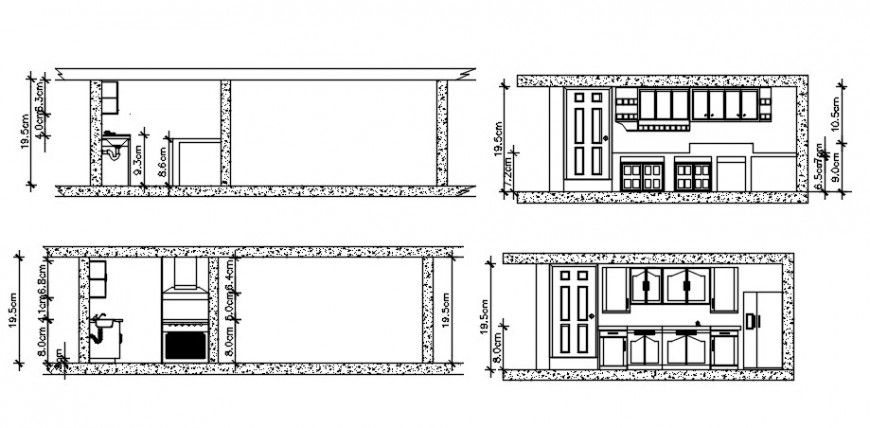
2d CAD sectional drawings details of kitchen autocad file that shows kitchen automation and furniture units dteials. Kitchen sink gas-stove details along with door with kitchen units other blocks details also included in drawings.
File Type:
DWG
File Size:
2.1 MB
Category::
Construction
Sub Category::
Kitchen And Remodeling Details
type:
Gold
Uploaded by:
Eiz
Luna
