Footing structure plan and foundation details dwg file
Description
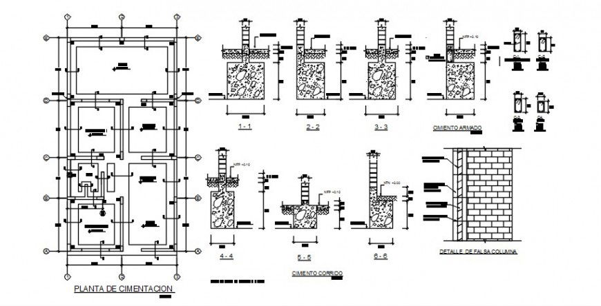
Footing structure plan and foundation details dwg file that shows foundation plan details along with footing structure details and reinforcement details in tension and compression zone. concrete masonry details and brick masonry wall details and other units details also included in drawings.
Uploaded by:
Eiz
Luna

