2d Drawings details of entrance gate with foundation details dwg file
Description
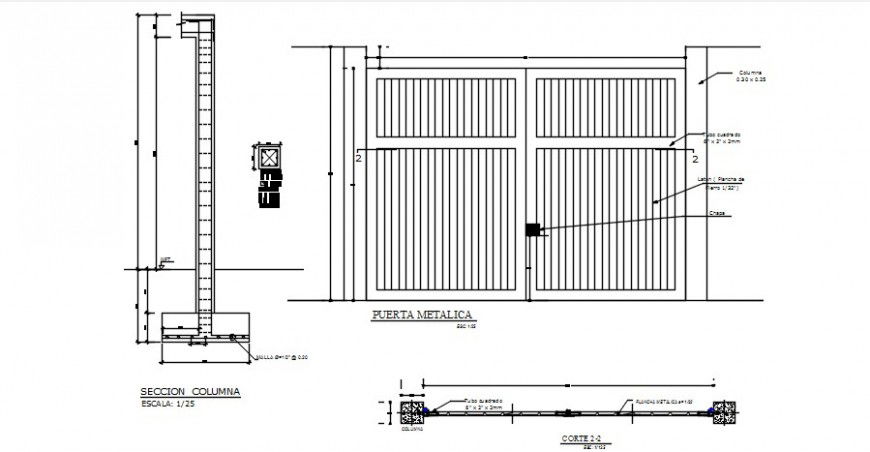
2d Drawings details of entrance gate with foundation details dwg file that shows entrance gate elevation details along with top elevation detials and reinforcement details in tension and compression zone along with main and distribution hook up and bent up bars dteials. Stirrups detaisl to hold up a bar in position with effective and clear cover dimension details also included in drawings.
Uploaded by:
Eiz
Luna
