2d drawings details of house floor plan dwg autocad file
Description
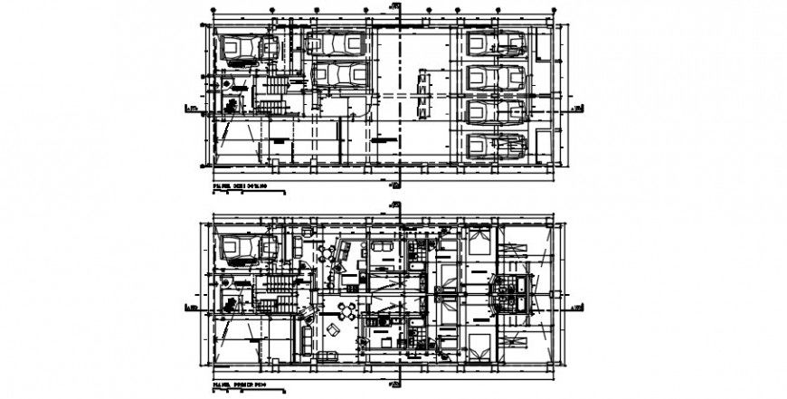
2d drawings details of house floor plan dwg autocad file that shows work plan of the house along with floor level dteials and furniture layout details in house. Floor level detials with dimension hidden line and basement parking space detials also included in drawings.
Uploaded by:
Eiz
Luna

