Drawings details of multi-story apartment dwg file
Description
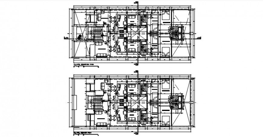
Drawings details of multi-story apartment dwg file that shows work plan of the house along with floor level dteials and furniture layout details in house. Floor level detials with dimension hidden line and basement parking space detials also included in drawings.
Uploaded by:
Eiz
Luna

