Floor plan drawings detailing of multi-story apartment building dwg file
Description
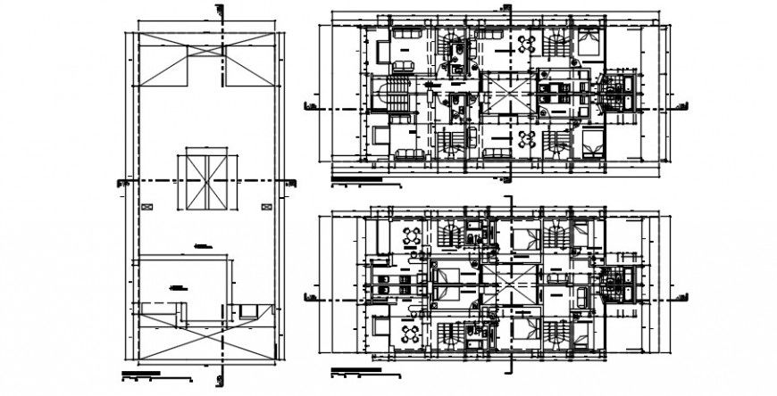
Floor plan drawings detailing of multi-story apartment building dwg file that shows work plan of house along with floor level dteials and furniture layout details in house. Floor level detials with dimension hidden line and basement parking space detials also included in drawings.
Uploaded by:
Eiz
Luna

