Restaurant layout plan and landscaping structure details dwg file
Description
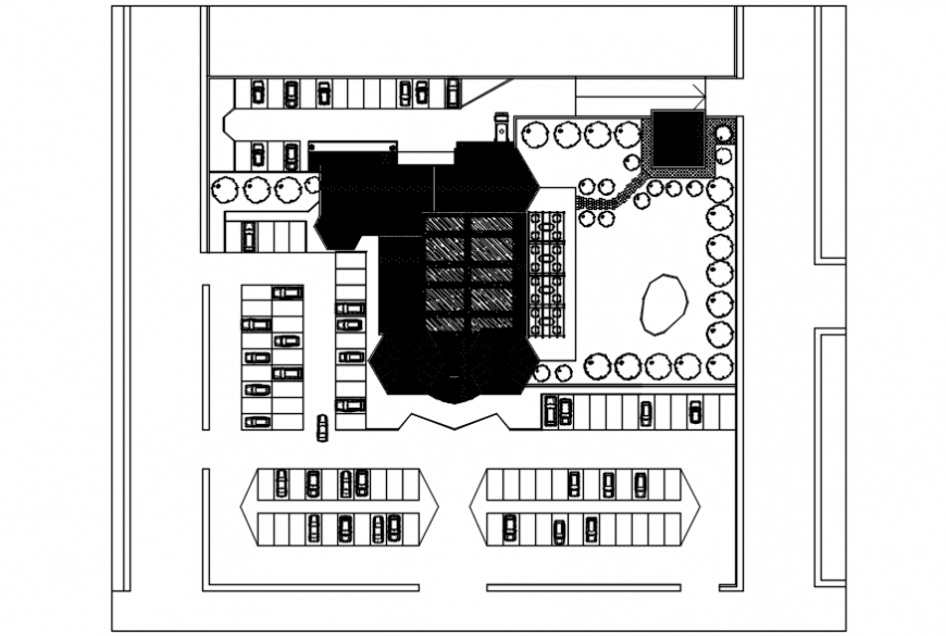
Restaurant layout plan and landscaping structure details that includes with garden area, reception area with waiting lounge, dining area with banquet hall and kitchen and cleaning department details and staff room and sanitary facilities provides with furniture details with interior details and much more of restaurant project with free download auto-cad file.
Uploaded by:
Eiz
Luna

