2 d cad drawing of sanitary product Auto Cad software
Description
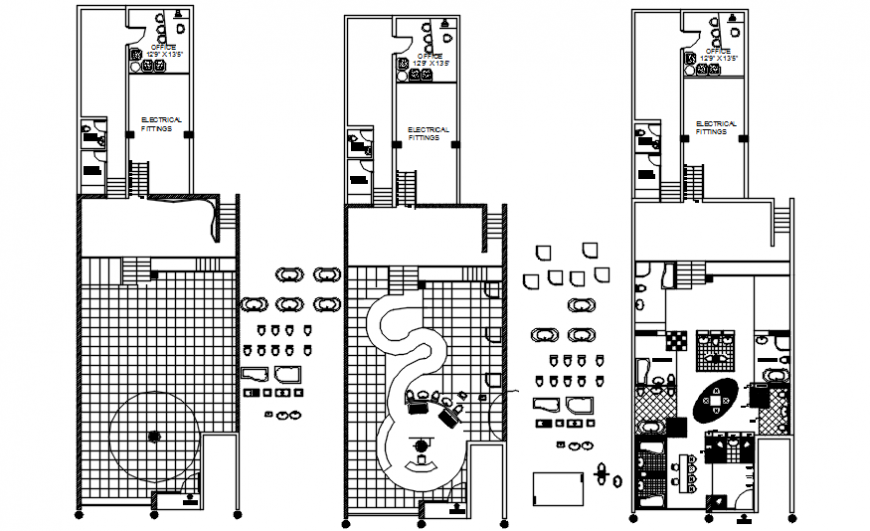
2d cad drawing of sanitary product autocad software detailed with electrical fittings and display rack and demo area with toilet area and pantry area and office room furniture been seen in the drawing.
File Type:
DWG
File Size:
333 KB
Category::
Interior Design
Sub Category::
Modern Office Interior Design
type:
Gold
Uploaded by:
Eiz
Luna

