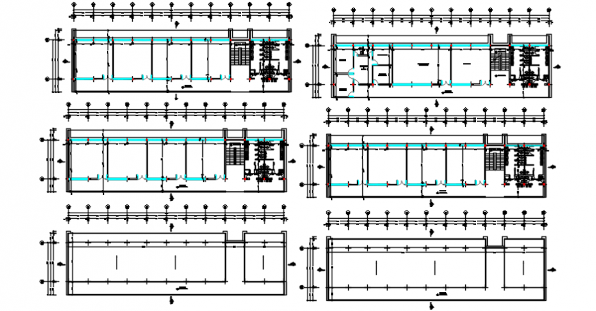
2D Cad drawing of administrative building layout plan
Description
find here 2D Cad drawing of administrative building layout plan institute building project, along with dimension detail and description detail of building project download free feature.
Uploaded by:
Eiz
Luna

