Beam elevation, section and construction cad drawing details dwg file

Beam elevation, section and construction cad drawing details dwg file
Profile

Uploaded by:

Eiz

Luna

Description

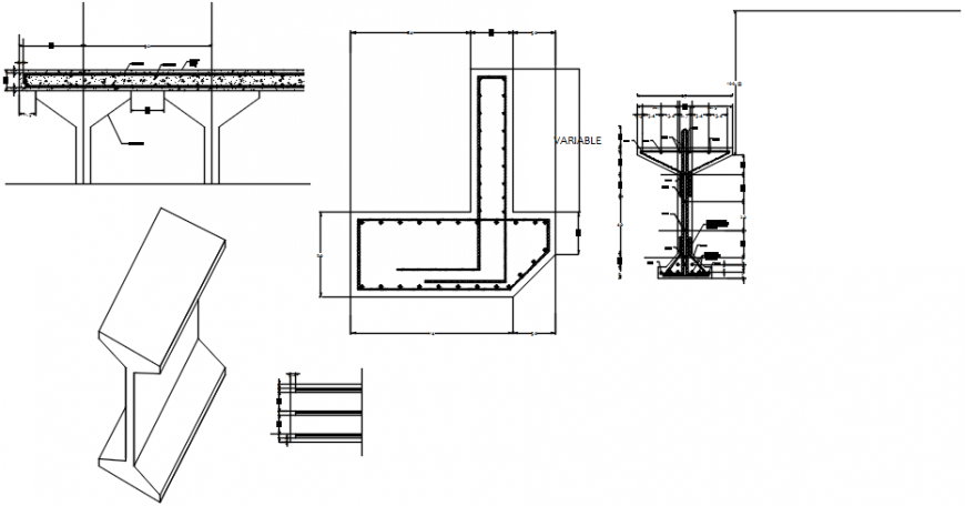
Beam elevation, section and construction cad drawing details that includes a detailed view of continues slab details with typical beam details, typical solid slab and reinforcement details, typical beam foundation details with dimensions details, memory of material details, construction details and scale details, structure details and much more of beam details.

Profile

Uploaded by:

Eiz

Luna

find Latest

Related Files

WhatsApp Chat