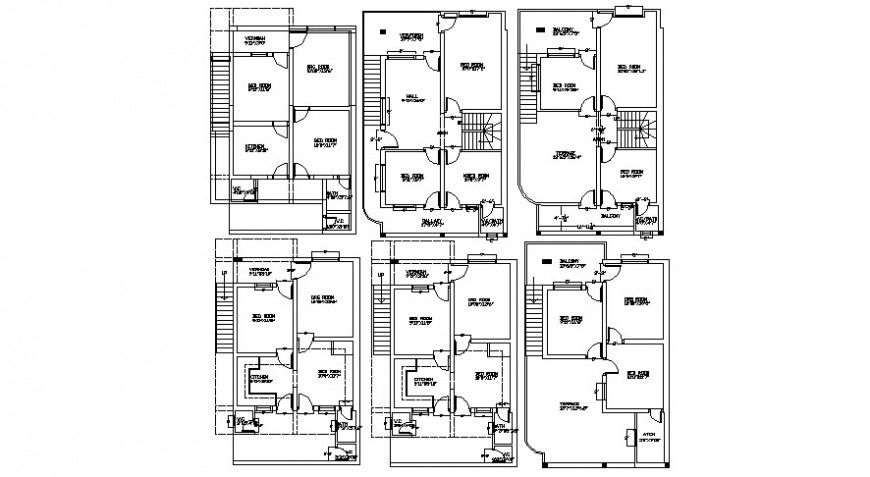
2 d cad drawing of ground and first floor auto cad software
Description
2d cad drawing of ground and first floor autocad software tht details with balcony with bedroom and terrace area and two bedroom. Veranda with drawing room and two bedroom and kitchen layout and attached bath area and kitchen wash area
Uploaded by:
Eiz
Luna

