Swimming sport centre layout plan
Description
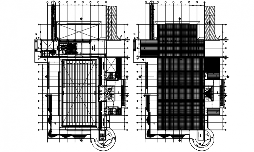
find here layout plan of Swimming sports centre project detail includes a straight line for swimming pool, furniture detail and roof plan of swimming pool sports centre project detail cad file.
Uploaded by:
Eiz
Luna
