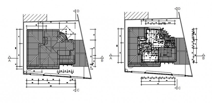
House floor plan details along with roof plan autocad file
Description
House floor plan details along with roof plan autocad file that shows the work plan of the house along with floor level dteials and furniture layout details in house. Room details include details of drawings room bedroom kitchen and dining area along with sanitary toilet and bathroom details
Uploaded by:
Eiz
Luna

