Main frontal elevation and section details of apartment building dwg file
Description
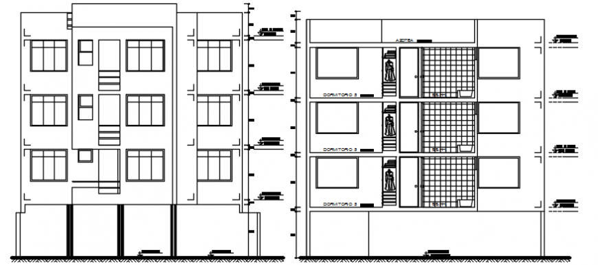
Main frontal elevation and section details of apartment building that includes a detailed view of flooring view with indoor and outdoor doors and windows view and staircase elevation and sectional view details, balcony view with wall design, parking area and dimensions and roof or terrace view and much more of apartment building details.
Uploaded by:
Eiz
Luna

