2 d cad drawing for bedroom elevation Auto Cad software
Description
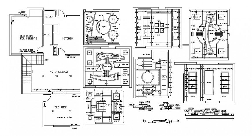
2d cad drawing for bedroom elevation auitocad software detailed with kitchen area and livinng and dining area and staircase area and door design panel and drawing been described in with round circle and other door design with four squar
File Type:
DWG
File Size:
148 KB
Category::
Interior Design
Sub Category::
Bathroom Interior Design
type:
Gold
Uploaded by:
Eiz
Luna

