Wooden cottage house section and doors and windows details dwg file
Description
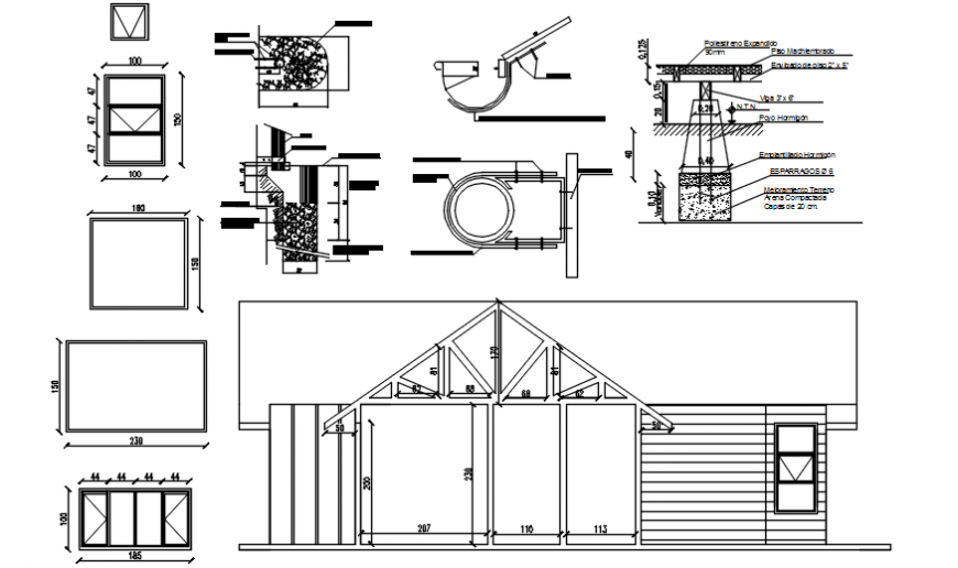
Wooden cottage house section and doors and windows details that includes indoor and outdoor doors and windows view and staircase elevation and sectional view details, doors and windows installation and framing details and much more of house details.
Uploaded by:
Eiz
Luna

