Multiple hotel bedrooms elevation cad drawing details dwg file
Description
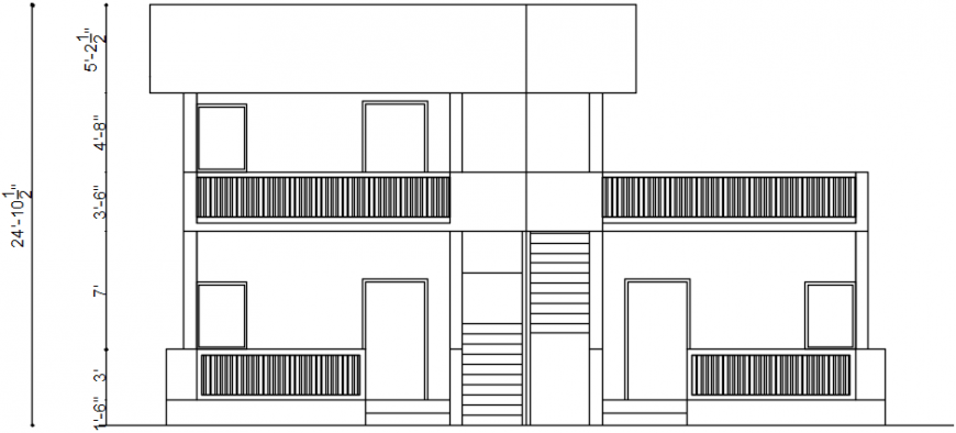
Multiple hotel bedrooms elevation cad drawing details that includes doors and windows view and staircase view details, balcony view with wall design, dimensions and roof or terrace view and much more of bedroom details.
File Type:
DWG
File Size:
302 KB
Category::
Interior Design
Sub Category::
Bathroom Interior Design
type:
Gold
Uploaded by:
Eiz
Luna
