2 d cad drawing of kitchen section plan Auto Cad software
Description
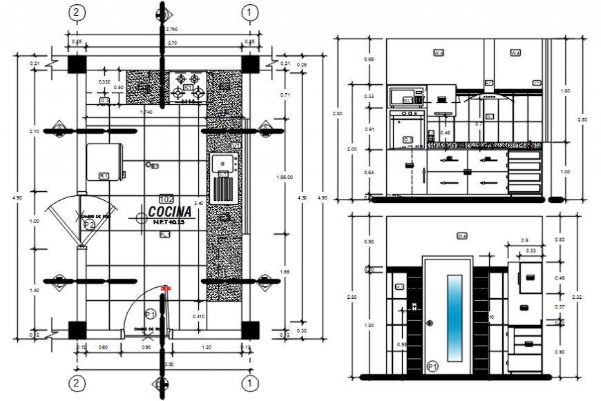
2d cad drawing of kitchen section plan AutoCAD software detailed with fridge area and four unit gas stove and wash basin and door seen in the drawing. Kitchen section seen with two feet slab and cabinet seen in drawing and microwave oven and chimney seen in drawing.
Uploaded by:
Eiz
Luna
