2 d cad drawing of kitchen furniture layout plan auto cad software
Description
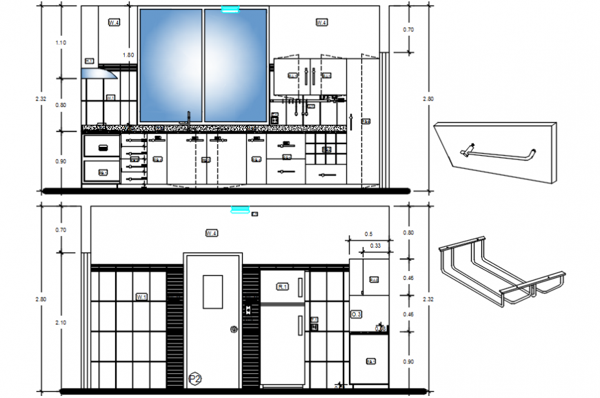
2d cad drawing of kitchen furniture layout plan autocad software detailed with lower and upper cabinet and big sliding door with inner cabinet steel plate seen In drawing
Uploaded by:
Eiz
Luna
