2 d cad drawing of hotel elevation Auto Cad software
Description
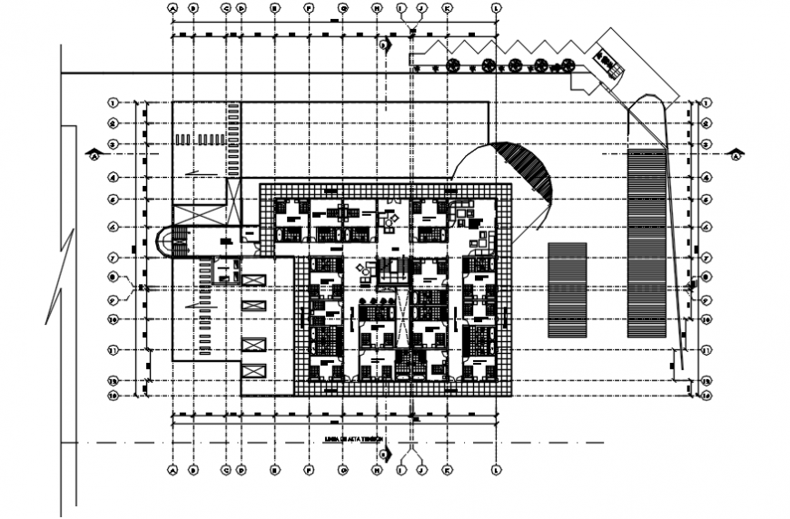
2d cad drawing of hotel elevation autocad software detailed with top view elevation with rooms and cafeteria and other necessary detailing given in drawing with seprate garden view and swimming pool asdide with dine in area restyaurant and single bed and double bed bedroom been given for the hotel plan with lounge area
Uploaded by:
Eiz
Luna

