Hospital top view layout block file

Hospital top view layout  block file
Profile

Uploaded by:

Eiz

Luna

Description

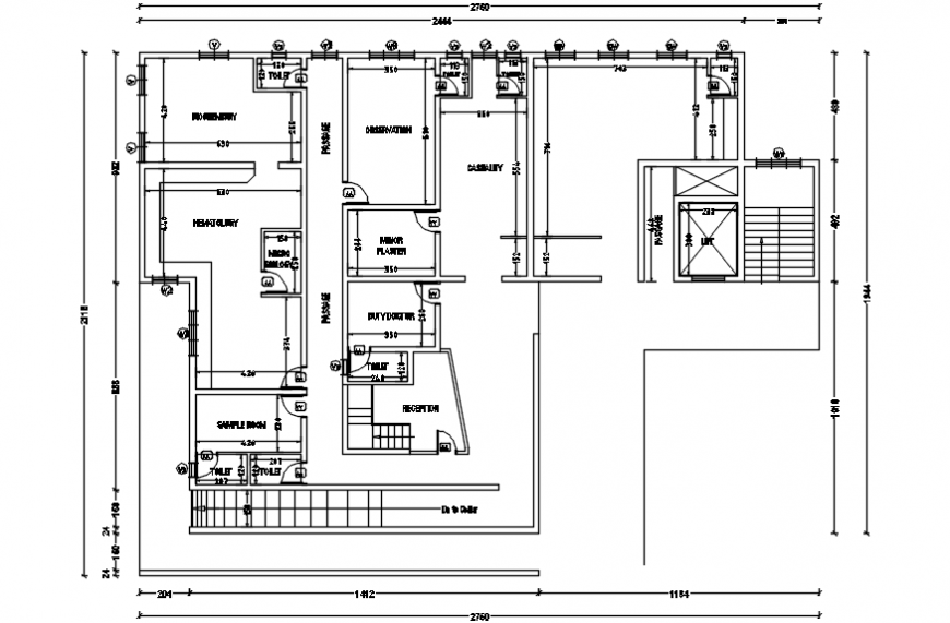
Hospital top view layout plan details , here there is top view layout plan of a hospital with various departments and text detailing in auto cad format

Profile

Uploaded by:

Eiz

Luna

find Latest

Related Files

WhatsApp Chat