Residence layout plan with furniture detail
Description
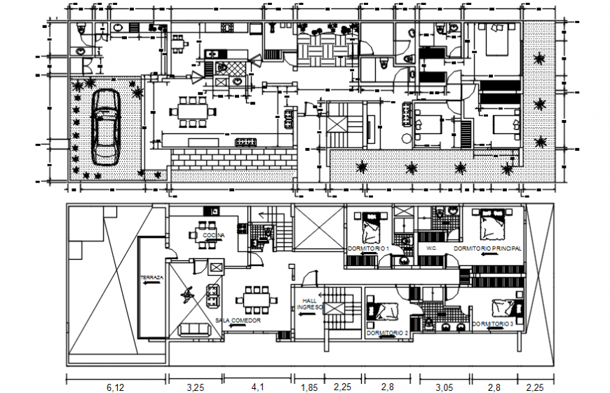
the architecture layout plan has been residence designing in autocad software, a Drawing showing layout plan includes bedrooms, modular kitchen design, drawing room, living room, storeroom, car parking, landscaping design, compoundary wall design along with all furniture detail in autocad format.
Uploaded by:
Eiz
Luna

