Residential multiple houses plotting and site plan drawing details dwg file
Description
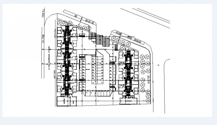
Residential multiple houses plotting and site plan drawing details that includes a detailed view of wide entry gate with indoor wide roads, plot or house numbers and total area details, common plot and road with house plot and children park space, senior citizen area, sample house with club house, running track and much more of site plan details.
Uploaded by:
Eiz
Luna

