2 d cad drawing of expansion workshop pillars elevation Auto Cad software
Description
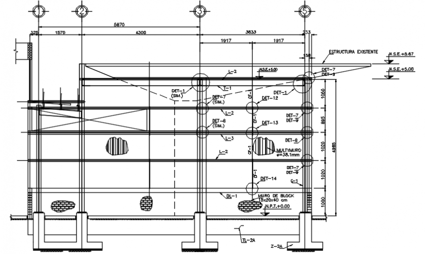
2d cad drawing of expansion workshop pillars elevation autocad software detailwd with description and dimension been mentioned as per drawing and cross elevation shown with shaped direction and dimension been given for all the described drawing with wall pillars with proper elevation shown for drawing.
File Type:
DWG
File Size:
187 KB
Category::
Construction
Sub Category::
Construction Detail Drawings
type:
Gold
Uploaded by:
Eiz
Luna

