2 d cad drawing of staircase concrete detail Auto Cad software
Description
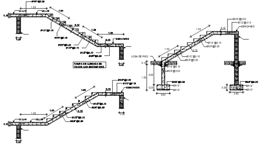
2d cad drawing of staircase concrete detail autocad software detailed with side elevation and mentioned drawing of staircase with dimensions and wall striuture concrete details.
Uploaded by:
Eiz
Luna

