Residential house electrical installation and plan cad drawing details dwg file
Description
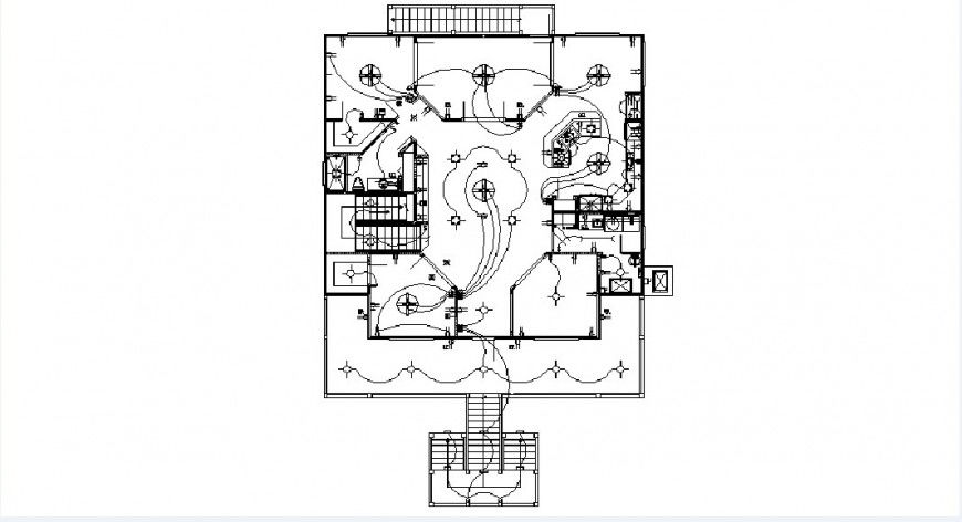
Residential house electrical installation and plan cad drawing details that includes a detailed view of free download file of power layout details and lighting layout details, computation and schedule of loads with general notes and specifications, panel board details, riser diagram with legends and electric equipment details, family hall details kitchen and dining area, indoor staircases and laundry area and balcony, details and bedroom or master bedroom, toilets and bathroom with indoor doors with cable details and dimensions details and much more of electrical installation details.
Uploaded by:
Eiz
Luna

