UTI bank constructive section and structure details dwg file
Description
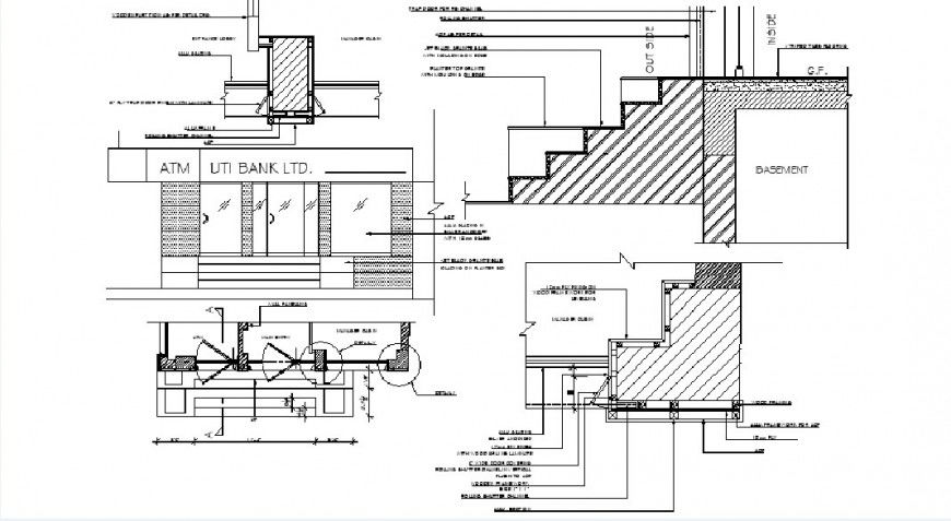
UTI bank constructive section and structure details that includes memory of materials, footings details, column view and beam construction, covers closure type with soil buried wall closure and interior partition and granite veneer of the country with steel supports, halfeneisen type with Brick partition with plaster plastering and Concrete wall and much more of bank details.
Uploaded by:
Eiz
Luna

