Elevation and sectional drawing details of apartment dwg autocad file
Description
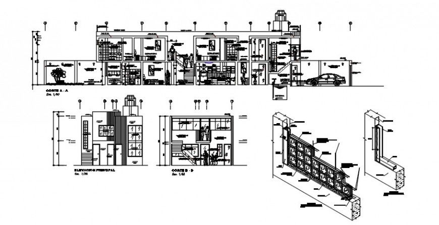
Elevation and sectional drawing details of apartment dwg autocad file that shows building apartment different sides of elevation detials like front elevation and sectional detaisl of building with floor level and leveling details along with parking space details also included in drawings.
Uploaded by:
Eiz
Luna

