Proposed plan drawings details of house 2d view autocad file
Description
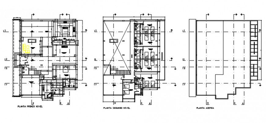
Proposed plan drawings details of house 2d view autocad file that shows work plan drawing details of the house along with floor level details and room dimension details. Dimension hidden line details with room details of drawings room bedroom kitchen and dining area details also included in the drawing.
Uploaded by:
Eiz
Luna

