CAD plan drawings detail of sanitary toilet autocad file
Description
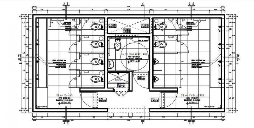
CAD plan drawings detail of sanitary toilet autocad file that shows sanitary toilet area details with dimension details and section line dteials. Sanitary blocks details of watercloset washbasin details along with door and ventilation details.
File Type:
DWG
File Size:
329 KB
Category::
Dwg Cad Blocks
Sub Category::
Sanitary CAD Blocks And Model
type:
Gold
Uploaded by:
Eiz
Luna

