Construction CAD Drawing of RCC Blocks AutoCAD File
Description
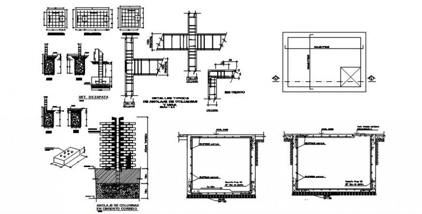
CAD drawing details of RCC structural blocks AutoCAD software file that shows foundation footing structure plan detials along with footing structure spacing details reinforcement details in tension and compression zone along with main and dustiution hook up and bent up bars details. Dimension details with stirrups details to hold up a bar in position and effective clear cover details also included in drawings.
File Type:
3d max
File Size:
—
Category::
Construction
Sub Category::
Reinforced Cement Concrete Details
type:
Gold
Uploaded by:
Eiz
Luna

