2d drawings details of footing units structure autocad software file
Description
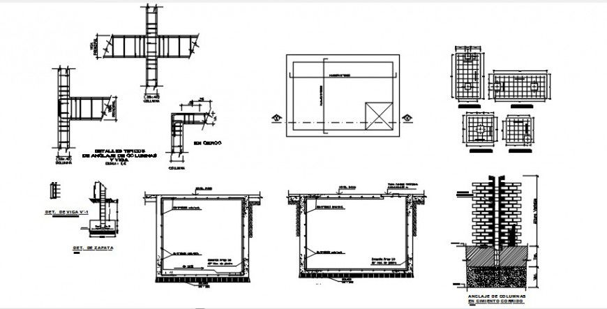
2d drawings details of footing units structure autocad software file that shows foundation footing structure plan detials along with footing structure spacing details reinforcement details in tension and compression zone along with main and dustiution hook up and bent up bars details. Dimension details with stirrups details to hold up bar in position and effective clear cover details also incldyed in drawings.
Uploaded by:
Eiz
Luna

