2d CAD drawings of house floor plan AutoCAD software file
Description
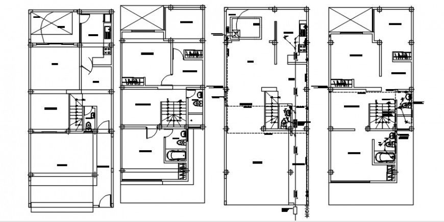
2d CAD drawings of house floor plan AutoCAD software file that shows work plan of the house along with floor plan details along with room details of drawings room bedroom kitchen and dining area details. Room dimension dteials and sanitary toilet bathroom details also included in drawings.
Uploaded by:
Eiz
Luna

