Restaurant detail file
Description
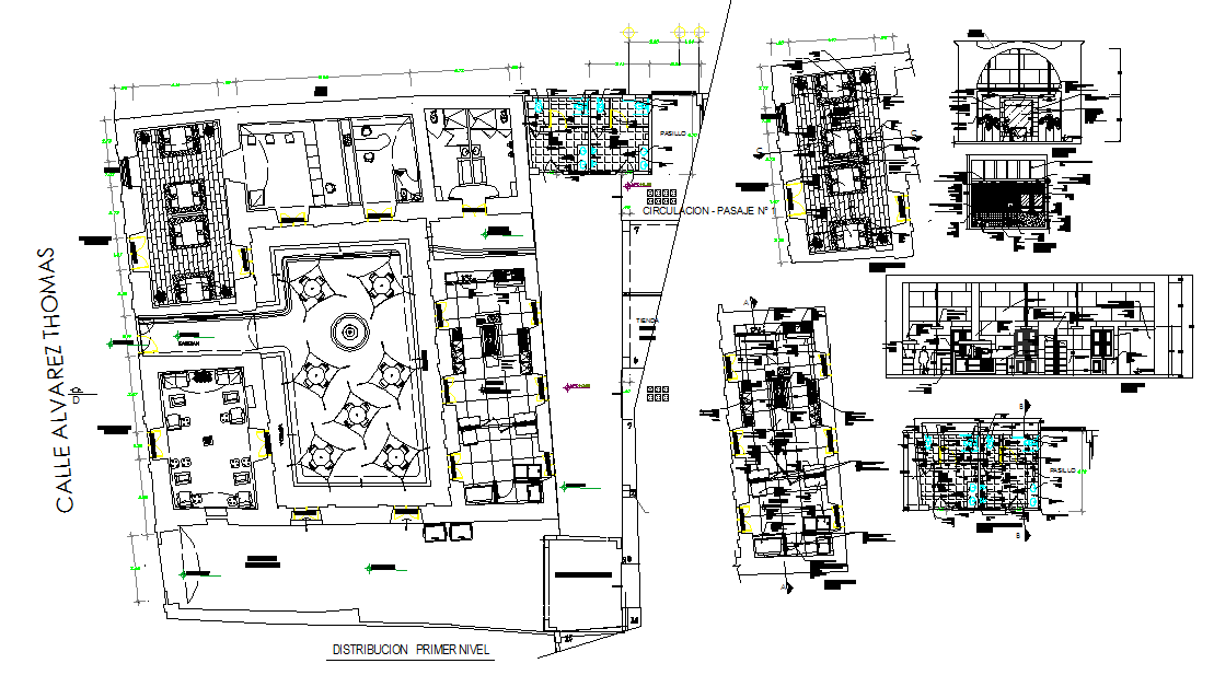
Some restaurants serve all the major meals, such as breakfast, lunch and dinner.Restaurant detail file Download file, Restaurant detail file Design, Restaurant detail file Detail.

Uploaded by:
Harriet
Burrows

Uploaded by:
Burrows