Floor plan drawings detailing of house 2d view autocad software file
Description
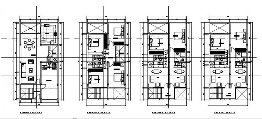
Floor plan drawings detailing of house 2d view autocad software file that shows housing units floor plan dteials along with furniture blocks details in house. Dimension hidden line dteials and room details include details of drawings room bedroom kitchen and dining area along with sanitary toilet and bathroom details.
Uploaded by:
Eiz
Luna

